Price Range: From to

Compare Listings

SOLD$639,000

Description

This Beautiful Property is SOLD!

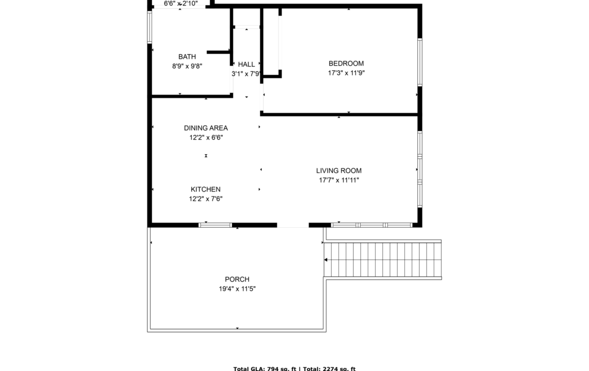
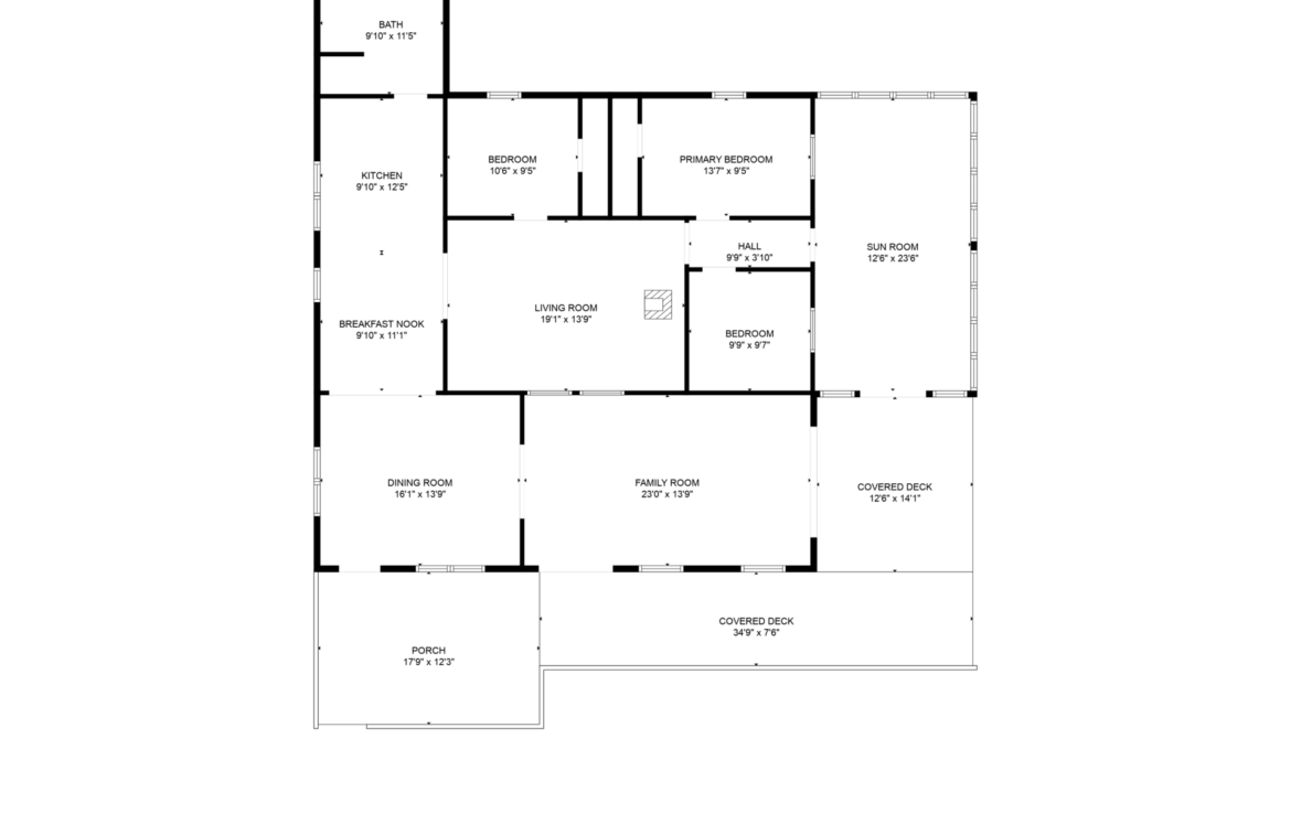
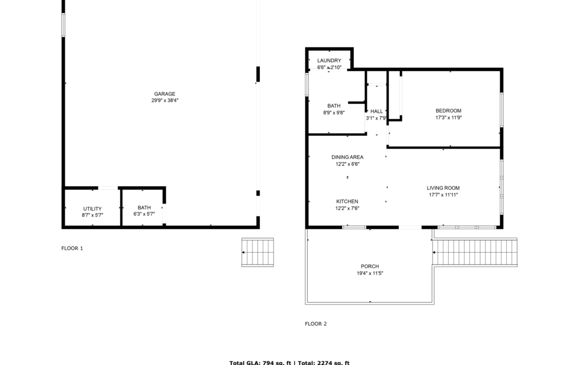
Lakefront Retreat on Long Lake – Private Beach, Dock, and Guest Apartment on 1.3 Acres Welcome to 28 N Jackpine Rd, a rare waterfront gem on the highly sought-after Long Lake in Fountain, Michigan. With 232 feet of private sandy frontage, a 50-foot dock, and a solar-powered pontoon boat lift, this property offers the ultimate lakefront lifestyle on one of the area’s most beautiful all-sports lakes. Set on 1.3 serene acres, the main home spans 2,000 sq ft and features 3 bedrooms, a spacious living room with a wood stove, a generous dining area, and a large family/bonus room. Recent upgrades include a new 310 sq ft sunroom, new roof, attic insulation, siding, windows, exterior doors, and PEX/PVC plumbing throughout. The home also offers a fully remodeled 140 sq ft bathroom and

an expansive 800 sq ft covered deck/patio, perfect for relaxing or entertaining. The old hot water baseboard heating has been removed, giving flexibility for future HVAC options.

Across the drive, you’ll find a massive 1,250 sq ft detached 3-stall garage with a utility room, half bath, and hookups for a welder and ceiling-mounted gas heater. Above the garage is a private loft apartment (780 sq ft) with separate utilities, private exterior entrance and deck (230 sq ft), 1 bedroom, 1 full bath, full kitchen, living room, and laundry, ideal for guests or rental income.

Enjoy lakeside evenings around the fire pit, quiet mornings on the dock, and endless opportunities to boat, swim, and fish right from your own property.

This is the Long Lake escape you’ve been waiting for…peaceful, private, and move-in ready.

Address

  • City: Fountain
  • State/county: Mason County
  • Neighborhood: Mason County
  • Country: United States

Detail

Updated on December 1, 2025 at 7:35 pm

  • Property ID: 25039610
  • Price: SOLD $639,000
  • Property Size: 2827 Sq Ft
  • Land Area: 1.3 Acres
  • Bedrooms: 4
  • Bathrooms: 2.5
  • Garage: 1
  • Garage Size: 3 Stall
  • Year Built: 1935
  • Property Type: Cabin, Home on water, Multi-Family, Single Family Home
  • Property Status: Sold

Page Views

Contact info

Brendon Delger
Brendon Delger
616-550-4446
Facebook Linkedin Youtube

Inquire about this property

Leave A Review

Please leave us a review!

View Full Listing Details

Please enter your info to continue

By continuing, you agree to be contacted about this listing.